Продажа 3х-комнатной квартиры

76 м²
Площадь
41.8 м²
Жилая площадь
12.2 м²
Площадь кухни
3/10
Этаж

7 750 000 ₽

102 243 ₽ за м²

ID объявления 12277719

Поделиться

Добавить в избранное

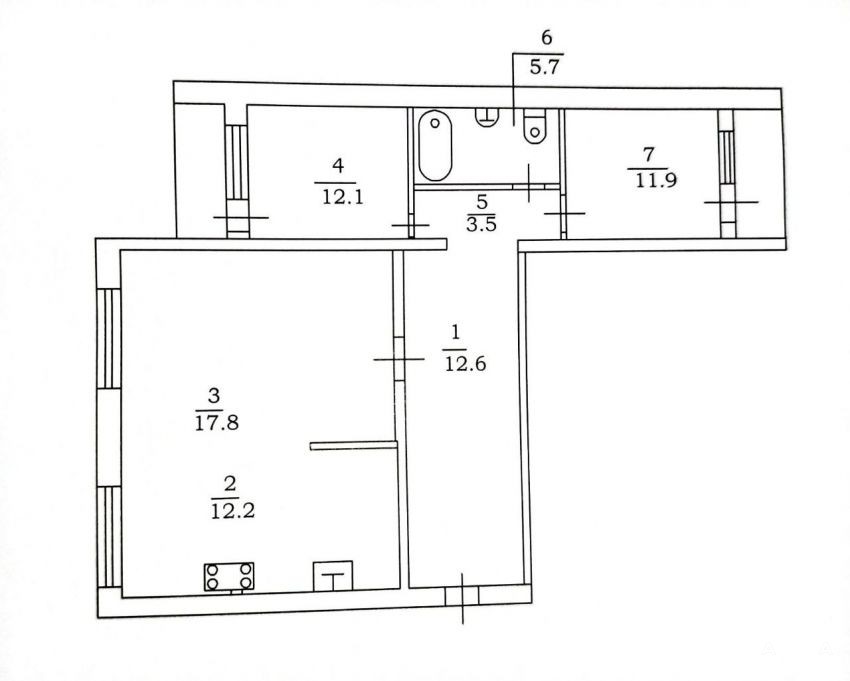
Номер объекта в базе: 57687. 3-комнатная квартира 76 кв. м в Кировском районе, рядом с центром. Кирпичный дом 2002 года (серия М-25), удобный 3/10 этаж. Отличный вариант на вторичном рынке для семьи или покупки под инвестиции. Основные характеристики:• Изолированные комнаты 18 / 12 / 12 кв. м — удобная планировка. • Большая кухня 12 кв. м. • Просторная застеклённая лоджия. • Раздельный санузел. • Кирпичный дом — тёплый и тихий, хорошая шумоизоляция. • Чистый подъезд, лифт, благоустроенный двор.ЛокацияКировский район — один из самых востребованных: рядом центр города, школы, детские сады, супермаркеты, остановки, поликлиника. Удобная транспортная развязка, быстрый выезд в любую часть города. Высокая ликвидность.Документы• 2 взрослых собственника • Без обременений • Без несовершеннолетних • Подходит под ипотеку любого банкаСостояниеЖилое, требуется косметический ремонт — можно сделать интерьер под свой стиль без переплаты.Звоните — отвечу на вопросы и организую просмотр!

Дата обновления: 25 декабря 2025