Аренда помещения свободного назначения

20 000 ₽/мес

1 000 ₽ за м²/мес.

20 м²
Площадь
1
Этаж

Поделиться

Добавить в избранное

От собственника! Без комиссии!
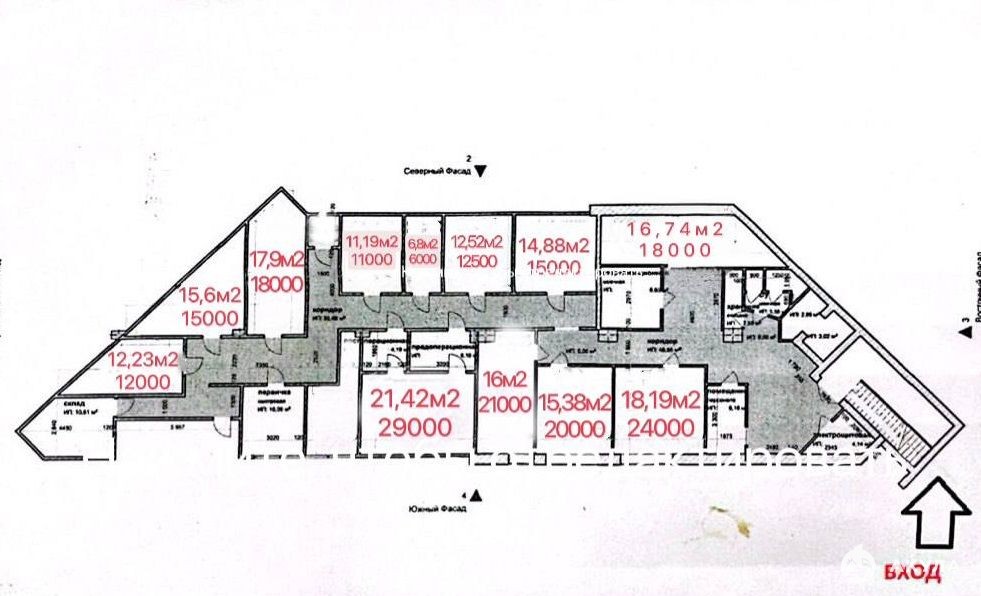
Кабинеты разных площадей  1 этаж в ТЦ "Квадро" от 10 до 22 м2 с окнами и без. Стоимость разная,   зависит от площади и расположения. Практически в каждой комнате есть мокрые точки. Комфортная зона ожидания для клиентов, несколько санузлов, 2 входа, наличие парковки. ТЦ расположен в центре Юбилейного, пешеходный и автомобильный трафик. остановка общественного транспорта.   Место пользуется популярность и приманивает к себе как магнит из за  расположения и наличия различных магазинов,   включая федеральных( Магнит, Фикс прайс, Улыбка радуги),   кафе, банки.
Характеристики:
- 1 линия
- Отдельная входная группа
- Общая парковка
- Есть возможность разместить вывеску
- Погрузка/разгрузка: Главный вход
- Доступ 24/7
- ХВС/ГВС
- Общий санузел
- Автономное отопление
- Максимальная мощность 50 кВт
- Хороший ремонт
- Торговый/офисный центр
- Имеется запасной выход
- Высота потолков 4 м
- С окнами
- Возможность перепланировки
- Коммунальные услуги включены

Дополнительная информация:
На втором фото указано какие помещения свободные.
Кабинеты разных площадей  1 этаж в ТЦ "Квадро" от 10 до 22 м2 с окнами и без. Стоимость разная,   зависит от площади и расположения. Практически в каждой комнате есть мокрые точки. Комфортная зона ожидания для клиентов, несколько санузлов, 2 входа, наличие парковки. ТЦ расположен в центре Юбилейного, пешеходный и автомобильный трафик. остановка общественного транспорта.   Место пользуется популярность и приманивает к себе как магнит из за  расположения и наличия различных магазинов,   включая федеральных( Магнит, Фикс прайс, Улыбка радуги),   кафе, банки.
По всем вопросам можете обращаться к представителю собственника: Роман Х.

Дата обновления: 20 декабря 2025