17 000 000 ₽

59 860 ₽ за м²

284 м²
Площадь
1
Этаж

Поделиться

Добавить в избранное

От собственника, без комиссии для покупателя!
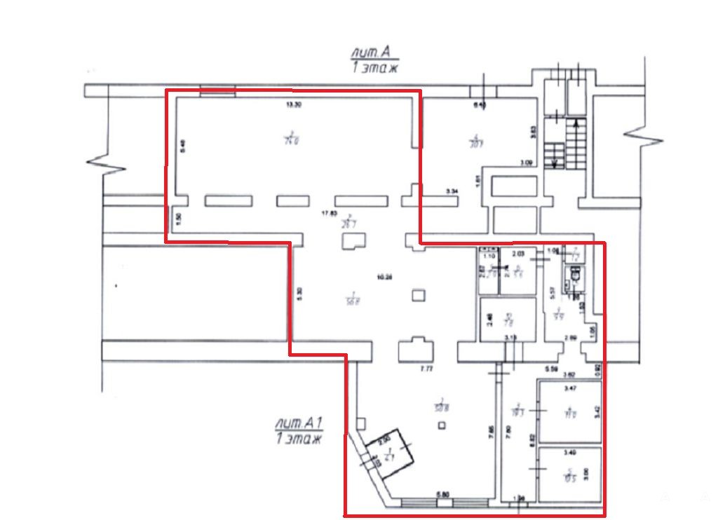
Торгово-офисное помещение 285 м2;
расположено на 1-м этаже 5-этажного жилого дома;
мощность электричества 40 кВт;
высота потолков 3 м;
пол — плитка;
потолки — Армстронг;
стены — «короед»;
сан. узел у каждого арендатора;
отдельный вход;
запасной выход;
доступ 24/7;
парковка около помещения;
1-я линия, высокий автомобильный трафик.
Часть помещения занимает долгосрочный арендатор: жигулёвское пиво "На дне"
(занимают 150 м2, заштриховано на плане).

Екатерина Д.
Помощь с оформлением ипотеки

Подписывайтесь на наш профиль, чтобы узнавать о новых локациях первыми!



Добавьте это объявление в "избранное" - чтобы не потерять.

Дата обновления: 26 октября 2025